📊 רמת הפרסום של הנכס
זכות לדירה במתחם שדות 374 | אבן יהודה
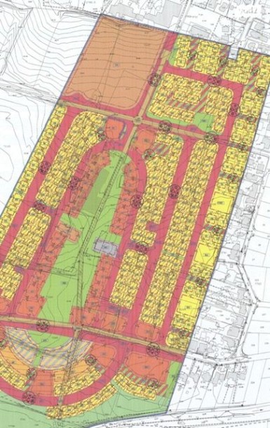
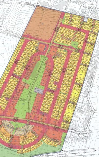
🏗️ תוכנית מאושרת
זכויות לדירת למכירה במתחם שדות 374 המבוקש, אבן יהודה. הזדמנות נדירה שלא הייתה כמותה הרבה זמן במושבה הכי מבוקשת בשרון! מושלמת למשפחות שרוצות להישאר במושבה. התוכנית מאושרת בהזדמנות יוצאת דופן.
החוף
ישוב: אבן יהודה (ישראל)
1.1מ' ₪
סטטוס נכס: למכירה
קטגוריה: דירה
מס' חדרים: 0.0
מס' חדרי רחצה/ושירותים: 0
מס' קומה: 0
מ"ר (m²): 0
קרוב להכל📢
✔ פרוייקט חדש🆕
---
וילי מרקוביץ - 0533325330
🏗️ תוכנית מאושרת
זכויות לדירת למכירה במתחם שדות 374 המבוקש, אבן יהודה. הזדמנות נדירה שלא הייתה כמותה הרבה זמן במושבה הכי מבוקשת בשרון! מושלמת למשפחות שרוצות להישאר במושבה. התוכנית מאושרת בהזדמנות יוצאת דופן.
החוף
ישוב: אבן יהודה (ישראל)
1.1מ' ₪
סטטוס נכס: למכירה
קטגוריה: דירה
מס' חדרים: 0.0
מס' חדרי רחצה/ושירותים: 0
מס' קומה: 0
מ"ר (m²): 0
קרוב להכל📢
✔ פרוייקט חדש🆕
---
וילי מרקוביץ - 0533325330
פרוייקט חדש🆕
קרוב להכל📢
🗺️ מיקום הנכס במפה
החוף